Reti di distribuzione idraulica: gerarchia, dimensionamento e metodo di Cross

Documento dall'Università sulle reti di distribuzione idraulica, gerarchia delle condotte e dimensionamento. Il Pdf, utile per lo studio universitario di Informatica, illustra le reti aperte e chiuse, con focus sul metodo di Cross, schemi e formule per il calcolo di portate e carichi piezometrici.

Mostra di più

15 pagine

Reti di distribuzione
Gerarchia delle condotte
Avvicinamento
I
I
II
II
III
III
III
III
II
II
III
III
RC
RC
III
III
RC
RC
Denominazione:
- condotta di avvicinamento
- condotte primarie
- condotte secondarie
- condotte terziarie
- rete capillare
Reti di distribuzione
Disposizione delle varie canalizzazioni nelle strade
Più in basso
Intermedia
In alto

Visualizza gratis il Pdf completo

Registrati per accedere all’intero documento e trasformarlo con l’AI.

Anteprima

Reti di distribuzione

Gerarchia delle condotte

Denominazione:

  • condotta di avvicinamento
  • condotte primarie
  • condotte secondarie
  • condotte terziarie
  • rete capillare

Avvicinamento I I III II III III II III II III RC II III RC RC III RC III

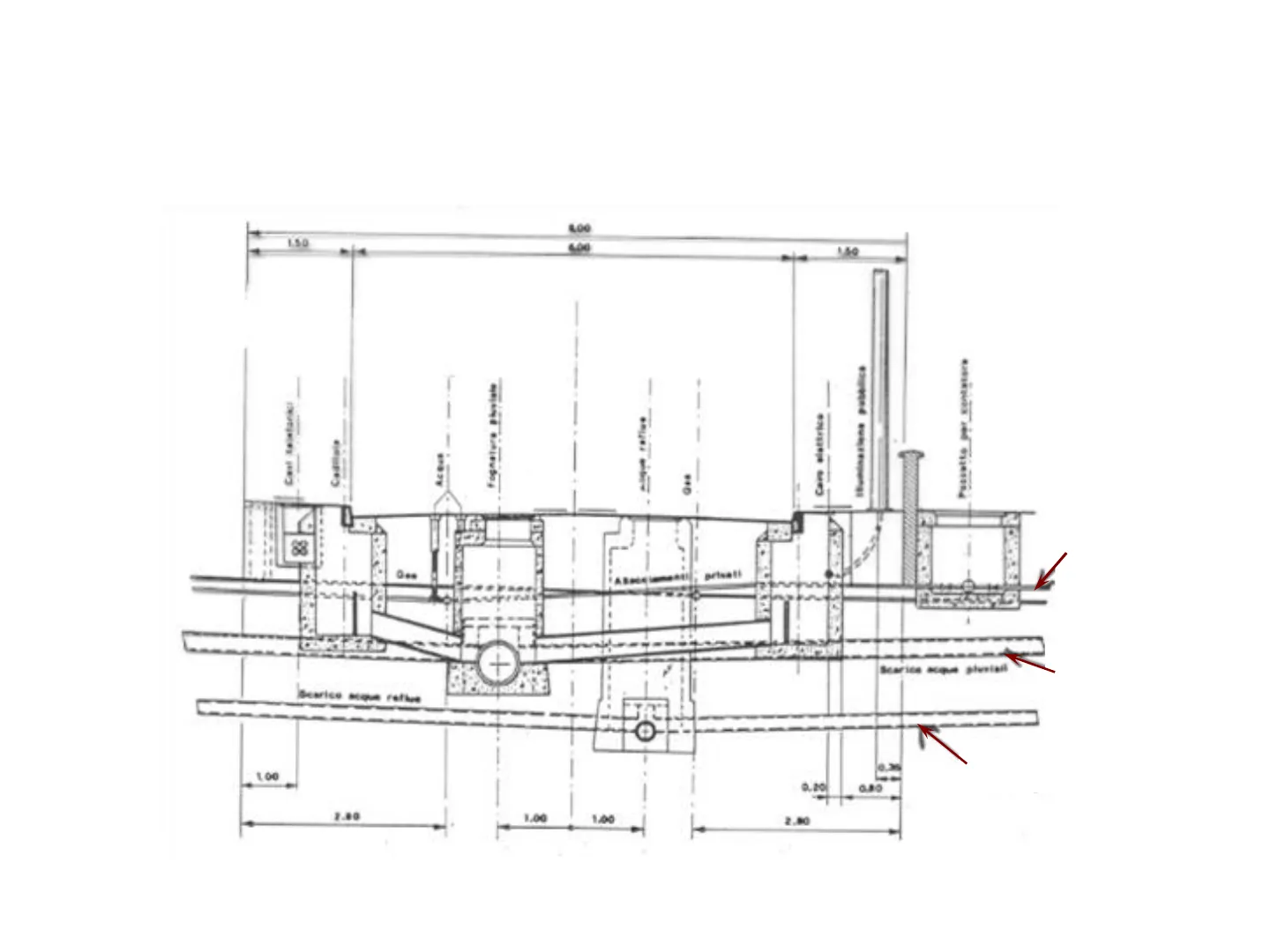
Reti di distribuzione

Disposizione delle varie canalizzazioni nelle strade

150 400 Acqua Cars alattrice In alto 88 petsati + Scarica come alertail Intermedia Scarico -que rethe D 1.00 0.20 Più in basso 2.00 1.00 1.00 2.80

Reti di distribuzione

Terminologia

Rete = insieme di maglie e ramificazioni connesse tra loro in modo generico Nodi = punti in cui convergono due o più lati, punti di una stessa condotta in cui vi è una portata concentrata entrante o uscente, punti in cui cambia la direzione del moto di corrente Lato = condotta a sezione costante avente per estremi due nodi consecutivi della rete Maglia = poligonale chiusa che non ne contenga altre e che abbia in comune con ciascuna delle rimanenti almeno un lato

Reti di distribuzione

Dimensionamento idraulico

Si risolve in genere un problema di verifica: si fissa una distribuzione di diametri ragionevole (in funzione delle velocità in condotta) e si verificano i carichi piezometrici in rete (nei nodi)

  • Reti aperte (n nodi, I lati) Nota la portata immessa in rete (nodo 0) e le portate Qi erogate agli n nodi della rete si possono calcolare le portate che scorrono negli l lati 0 Q0-1 Q2 Q1-2 1 2 Q1 Q2-3 3 Q3-4 4 Q3-5 Q4 Q5 5 Ah = h, - hn = k D 2 i,i+1 L , + 1 = 'i,i+1 Q 2 + 1 5 i,i+1 Incognite: n-1 carichi piezometrici ai nodi (è noto il carico al serbatoio 0) Equazioni: 1 = n-1 equazioni del moto lungo i rami del tipo: Q3

Reti di distribuzione

Dimensionamento idraulico per reti chiuse

  • Reti chiuse In questo caso sono incognite anche le portate che scorrono nei lati delle maglie nonché i loro versi di percorrenza dei rami Q4 1 Q1-4 Q1 4 Q1-2 - Q3-4 2 3 Q2-3 Q2 Q3

Reti di distribuzione

Metodo di Cross per reti chiuse

  • Note le portate Qi erogate agli n nodi della rete (da calcolarsi come concentrate in base agli abitanti serviti dal nodo)
  1. Si fissa un verso positivo di circolazione delle maglie (ad es. orario)
  2. Si fissa una qualsiasi distribuzione di portate congruente (che soddisfi le equazioni di continuità in ciascun nodo della rete)
  3. Per ciascuna maglia deve essere: 2(Ah;)=0 i Σβ . (Ω, + ΔΩ)2 = 0 i Σβ. (22+ΔΩ2 +20, ΔΩ) = 0 i i i i (portata correttiva) se B; è assunto >0: 4Q = -- i 2 i Q i i

Reti di distribuzione

Metodo di Cross per reti chiuse: correzione delle portate

  • La portata correttiva così ottenuta sommata algebricamente alle portate di ciascun ramo soddisfa ancora al continuità e fornisce una prima correzione alla distribuzione iniziale delle portate.
  • L'operazione va compiuta per tutte le maglie della rete. Alle portate defluenti lungo i lati comuni a due maglie si sommano algebricamente le portate correttive delle due maglie stesse
  • In tal modo si induce nelle maglie contique uno sbilanciamento attraverso i lati comuni, ma dopo qualche iterazione si giunge a convergenza.

Reti di distribuzione

Metodo di Cross per reti chiuse - esempio

  • due maglie quadrate ABEF e BCDE
  • lunghezze e diametri uguali: ß; tutti uguali 15 2 2 A B 1 C 8 F E D 1. 2 M

Reti di distribuzione

Metodo di Cross per reti chiuse - esempio: verso di circolazione

  • si fissa positivo il verso orario di circolazione
  • si fissa una distribuzione congruente di portate iniziali: 15 2 2 A 10 5 B C 5 3 3 - 8 F 4 E 5 D 1 2
  • per la maglia ABEF si ha: AQ ABEF = - 1.54 ₿(102 + 32 -42 -52) 2B(10+3+4+5)

Reti di distribuzione

Metodo di Cross per reti chiuse - esempio: distribuzione corretta

  • si ha allora la seguente distribuzione corretta: 15 2 2 A 8.46 5 1 B C. 6.54 + 1.46 3 8 F 5.54 E 5 D 1. 2
  • per la maglia BCDE si ha: AOICDE ₿(52 +32-52 -1.462 23(5+3+5+1.46) = -0.24

Reti di distribuzione

Metodo di Cross per reti chiuse - esempio: correzione seconda maglia

  • e correggendo anche la seconda maglia: 15 2 2 A 8.46 B 4.76 C. 6.54 + 1.70 2.76 8 F 5.54 E 5.24 D 1. 2
  • ripartendo con la AQR ABEF si giunge subito a convergenza

Reti di distribuzione

Altri metodi per reti chiuse

  • Altro metodo utilizzato è il metodo nodale
  • Per ciascun ramo della rete può scriversi un'equazione che coinvolge le grandezze portata e carico ai nodi entrante e uscente
  • si imposta la matrice relativa al sistema di equazioni
  • si linearizza la matrice risolvendo il sistema
  • si ricavano le variabili portate lungo i lati e carichi ai nodi
  • Metodi basati su criteri di minimo costo

Impianti privati

Schemi di distribuzione

Chiave d'arresto Serbatoio 8 Contatore Contatore Bocche di 7 Bocche di presa 7 7 7 Condotta stradale - Condotta stradale 7 7 7 Valvola di nonritorno Chiave d'arresto

Impianti privati

Portate agli erogatori

Acquaio, lavabo da ufficio 0,20 1/s Lavabo individuale 0,12 1/s Lavabo collettivo (ogni getto) 0,05 1/s Bidè 0,12 1/s Vasca da bagno 0,35 1/s Doccia 0,25 1/s Fontanella 0,15 1/s Vaso di cacciata con cassetta 0,10 1/s Vaso con flussometro 1,50 1/s Orinatoi con rubinetto di cacciata 0,50 1/s Orinatoi con cassetta automatica 0,005 1/s Vasca per lavanderia 0,40 1/s Bocche da inaffiamento (idrante da autorimessa) 0,70 1/s

Apparecchio Durata med. del serv. (min. primi) Numero di servizi orari Erogazione media per servizio Consumo orario (litri) Annotazioni Lavabo con acqua fredda 10 6 12 72 acqua fredda Lavabo con acqua 10 6 12 72 acqua a 40°℃ .. Bidè 15 4 9 36 Doccia 20 3 60 180 40 1.5 160 240 Vaso con cassetta 10 6 9 54 acqua fredda Fontanella 1 60 0.8 48 Orinatoi a lavaggio continuo ... ... ... 180 Docce a fur ionamento continuo ... ... ... 600-720 acqua a 40℃ - Vasca da bagno calda

Impianti privati

Calcolo della simultaneità delle erogazioni

100 Coeff. di simultaneità (%) 50 uffici ospedali 20 Scuole appartamenti privati 10 5 2 0 2 5 10 20 50 100 200 500 1000 Numero di erogazioni tipo

Non hai trovato quello che cercavi?

Esplora altri argomenti nella Algor library o crea direttamente i tuoi materiali con l’AI.